The House of Sweden, completed in 2006 on the Georgetown waterfront, stands as one of Washington, DC’s most celebrated examples of contemporary Scandinavian architecture. Conceived through an international design competition and realized by Swedish architects Gert Wingårdh and Tomas Hansen, the project was brought to completion in the United States by Architect-of-Record John Jessen, whose leadership ensured the successful translation of the winning concept into a fully realized civic and cultural landmark.

Developed for the Embassy of Sweden and the Swedish National Property Board, the House of Sweden was envisioned not only as a diplomatic mission but as a public cultural center—an architectural ambassador for Swedish values, design, and identity. Its creation marked the culmination of a decades-long effort to establish a permanent embassy in Washington that reflected Sweden’s philosophy of openness, transparency, and connection to nature.

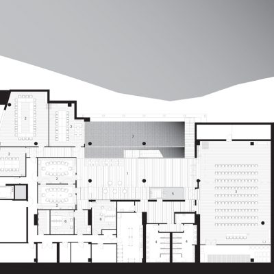
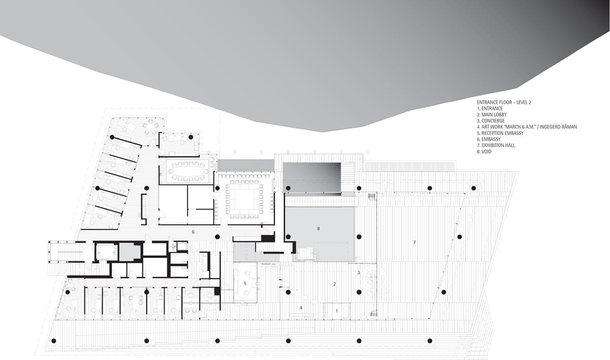
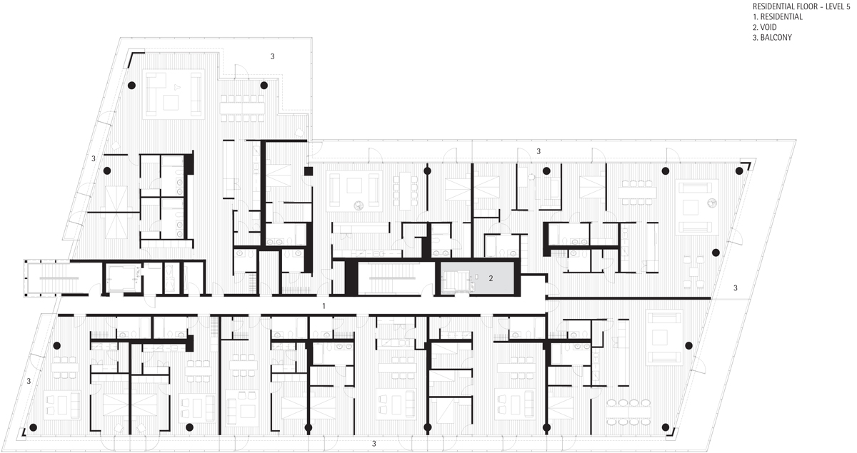
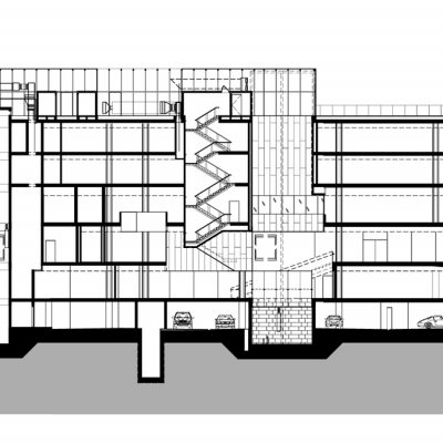
The design is defined by its luminous, glass-wrapped volumes and carefully choreographed daylight, expressing transparency both literally and symbolically. Expansive glazing opens the building to sweeping views of the Potomac River, reinforcing themes of accessibility and civic engagement. Natural materials—light woods, stone, and water—ground the building in Swedish tradition while presenting a refined, minimalist aesthetic consistent with Scandinavian modernism.

As Architect-of-Record, John Jessen played a critical role in delivering the complex design on a technically demanding urban site. His work encompassed coordination of U.S. building systems, careful integration of the Swedish design intent, and the execution of the project to meet American regulatory, structural, and construction standards. Jessen ensured that the architects’ conceptual clarity and cultural symbolism remained intact through every phase of development.

More than a diplomatic headquarters, the House of Sweden serves as a cultural venue, welcoming the public through exhibitions, lectures, performances, and events that showcase Swedish art, design, innovation, and policymaking. Its prominent location along the Georgetown waterfront makes it a civic destination—an elegant architectural expression of international dialogue and cultural exchange.

The result is a landmark that exemplifies the power of architecture to represent national identity while inviting public engagement. Through his role in its realization, John Jessen contributed to creating one of Washington’s most distinctive civic and cultural buildings.

Project location: Washington, DC

Project size: 81,000 SF

Work previously completed by John Jessen as Principal Architect & Architect-of-Record with VOA Associates (now Stantec).

Scroll to Top