Designed through an international competition in collaboration with Wonyang Architects, the Air Force Officers’ Exhibition Hall & Hotel in Seoul, Korea represents a significant civic and cultural commission—one that honors the legacy, values, and public identity of the Korean Air Force. Awarded first prize, architect John Jessen helped lead the design of a landmark complex that serves as both a commemorative institution and a contemporary gathering place for officers, visitors, and the broader community.

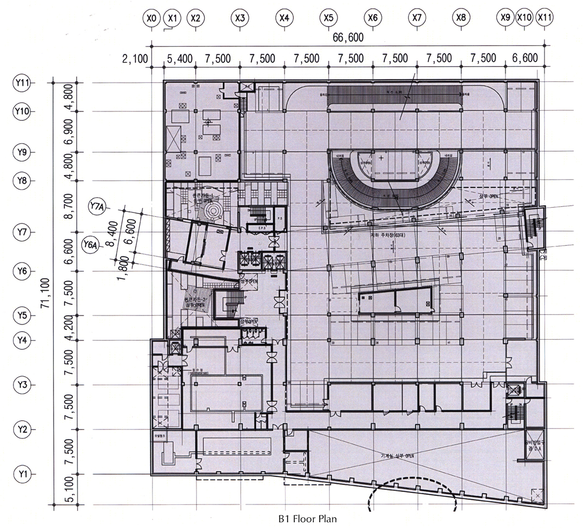
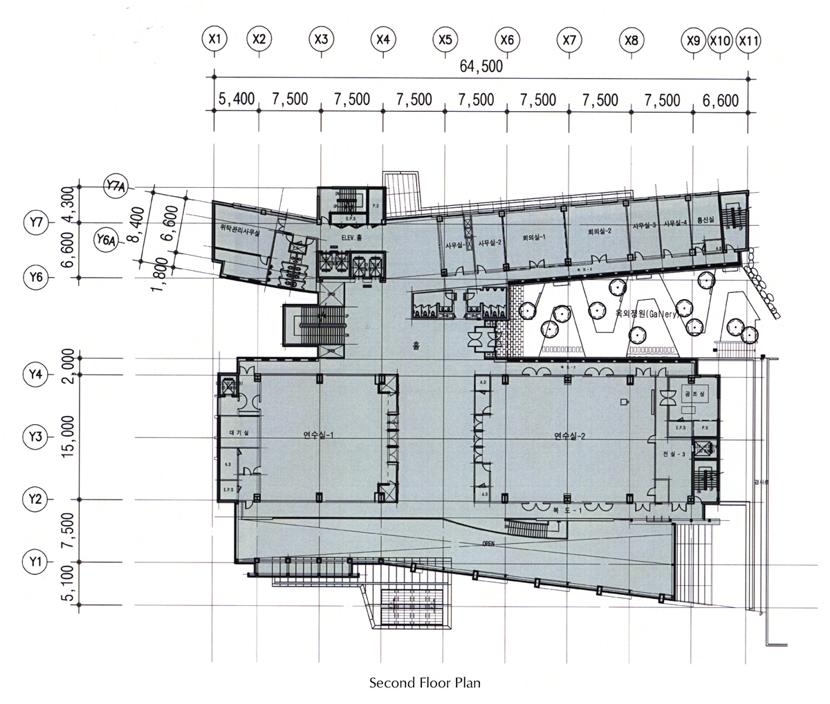
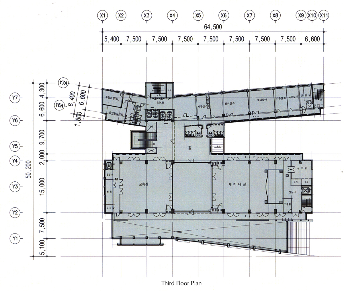
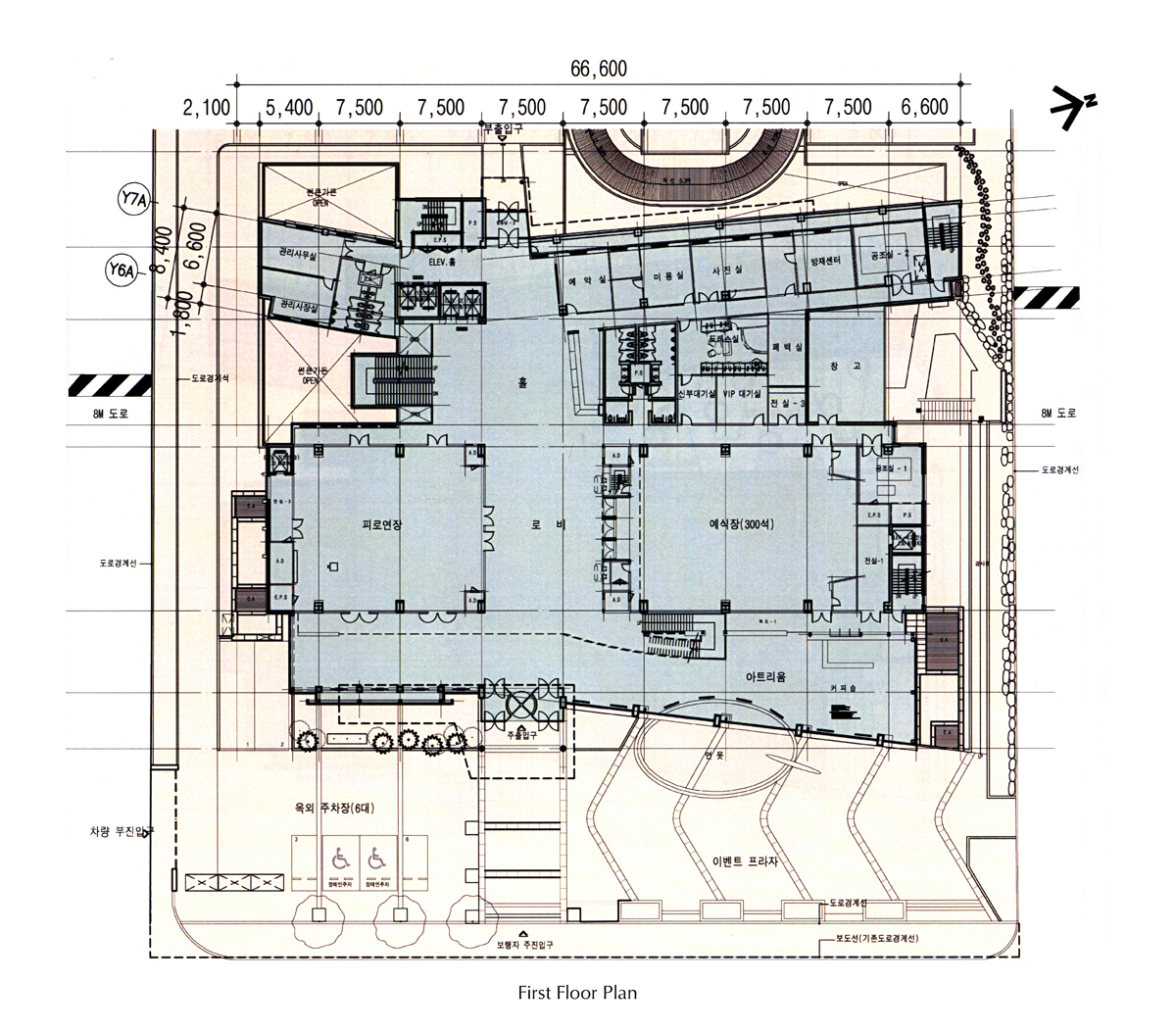
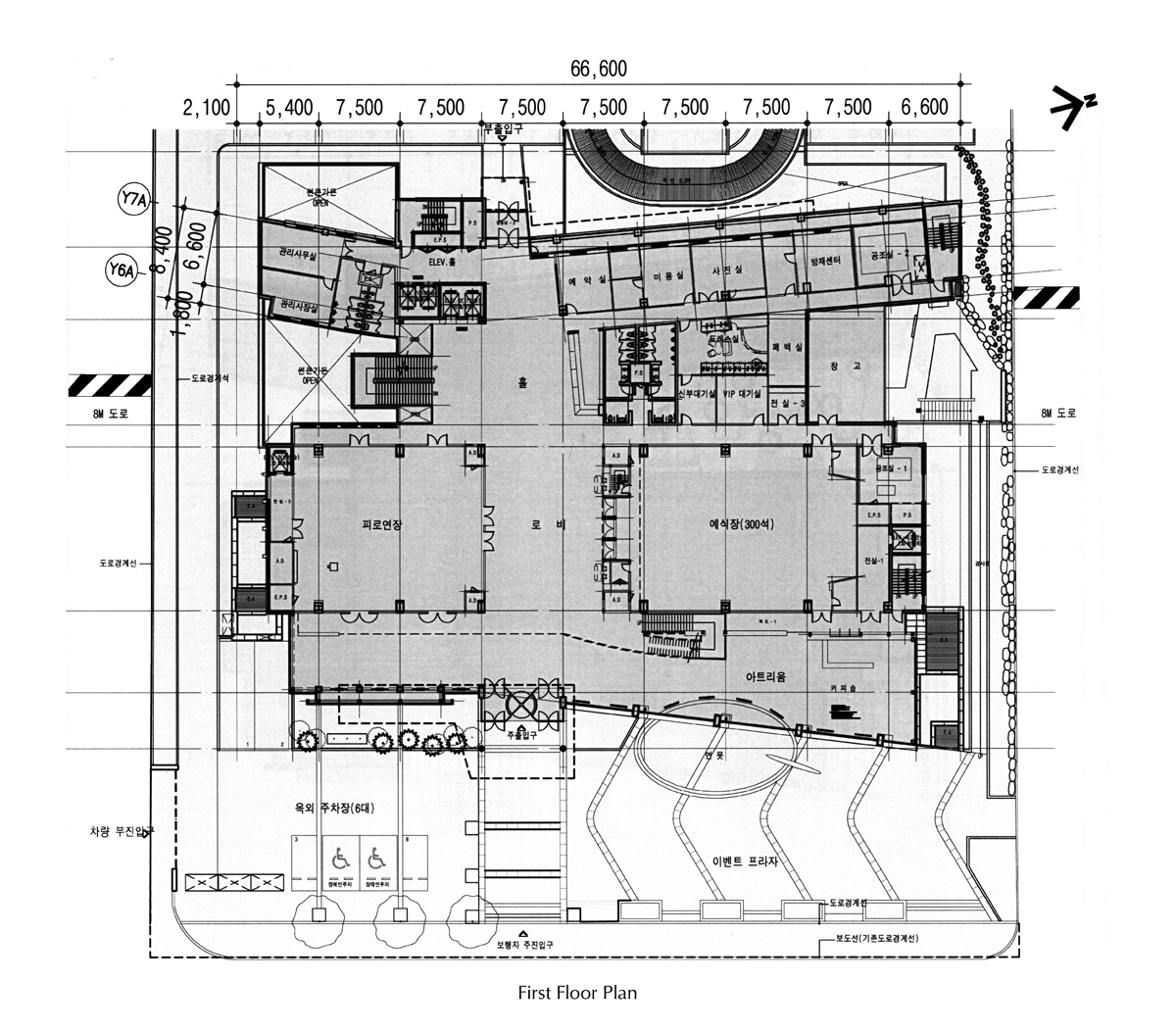
At the heart of the project is the Air Force Officers’ Exhibition Hall, a cultural centerpiece devoted to preserving and presenting the history, achievements, and heritage of the Korean Air Force. Designed as an immersive environment, the Hall accommodates rotating exhibitions, historic artifacts, and interpretive displays that celebrate service and sacrifice. Gallery spaces are organized to support both ceremonial events and everyday visitation, creating a dignified civic setting where collective memory and institutional pride can be shared.

Complementing the Exhibition Hall is a 7-story, 130-room hotel designed to support the complex’s cultural and ceremonial functions. More than guest lodging, the hotel extends the mission of the exhibition hall—providing dignified accommodations, meeting spaces, and hospitality environments for officers, dignitaries, veterans, and international guests. Materials, geometries, and spatial strategies throughout the building draw inspiration from themes of aeronautics, discipline, and modern military identity, interpreted through a contemporary architectural lens.

A key design challenge—and success—was integrating the exhibition hall and the hotel into a unified civic campus. Thoughtful planning ensures that public, ceremonial, and private functions coexist seamlessly, supported by amenities such as a conference center, reception areas, and recreational spaces. The result is a cohesive architectural composition that is both symbolic and highly functional.

At 90,000 square feet, the Air Force Officers’ Exhibition Hall & Hotel stands as a major cultural landmark—honoring the past, supporting the present, and inspiring future generations. Through its commemorative purpose and its community-oriented design, the project exemplifies Jessen Architects’ commitment to creating architecture that enriches civic life and strengthens cultural identity.

Project location: Seoul, South Korea

Project size: 90,000 SF

Work previously completed by John Jessen as Principal Architect & Architect-of-Record with VOA Associates (now Stantec).

Scroll to Top